Toronyóra szerkezetek elektromos vezérlésűek, általában percenkénti léptetéssel.
Az óraszerkezetek egy vagy több számlap kihajtásúak, méretük mindig az adott munkához alkalmazkodnak.
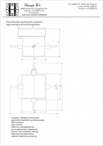
- Kompakt 4 kihajtású óraszerkezet
- 230V szinkronmotor
- nagy átmérőjű fém kúpkerekek
- bronz csigakerék
- egyszerűen rögzíthető, gondozásmentes.
- 4000mm számlapátmérőig
- por és páramentes horganyzott tokozás
- 15mm rozsdamentes tengelykimenet
- önkenő szinterbronz perselyek



